


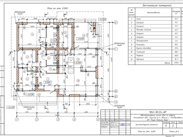
Арт. 135100968 Домовладение с характером. Редкое предложение для тех, кто ценит не шаблонные решения, а пространство с собственной философией, архитектурой и атмосферой. В продаже уникальное домовладение в жилом комплексе Руза Фэмили Парк — ансамбль из нескольких строений на участке 12 соток, сочетающий загородный комфорт, автономность и выразительный авторский стиль. О доме: На участке расположены: основной дом, гостевой дом/банный комплекс, отдельная котельная, отапливаемая теплица-купол в викторианском стиле и парковка на 2 автомобиля. Общая площадь отапливаемых помещений — около 500 м². Планировочное решение: - 4 полноценные спальни, включая мастер-блок с гардеробной и собственной ванной комнатой - 2 дополнительных кабинета с балконами (при необходимости могут использоваться как спальни) - объединенная гостиная с кухней-столовой - постирочная и хозяйственные помещения - санузел с ванной-купелью и гидромассажем - две мастерские / творческие пространства - зимний сад площадью 50 м² с отоплением и круглогодичным использованием В отделке использованы натуральные и долговечные материалы: массив дуба, антикварная дубовая доска, керамика, натуральный лабрадорит. Лестница и двери выполнены из массива дуба. Дом построен из профилированного термообработанного бруса, кровля — минеральная черепица Braas, качественные оконные системы Melke. В 2024 году выполнено обновление фасадного покрытия. Инженерные решения: - газовый котел 42 кВт - отдельностоящая котельная - теплые полы на первом этаже, в санузлах и зимнем саду - продуманная электросистема на компонентах Legrand DX - проводка в стальных трубах для повышенной безопасности - резервная система электроснабжения - солнечные панели общей мощностью 2.5 кВт Гостевой дом включает жилые комнаты, гостиную, кухню и санузел — идеально для размещения гостей, персонала либо организации полноценного SPA-пространства с сауной. Интерьер домовладения выполнен в яркой авторской эстетике: викторианские мотивы, steampunk-настроение, сочетание чугуна, стали, меди и благородного дерева. Это объект с индивидуальностью, который невозможно спутать с типовыми домами рынка. О поселке: Руза Фэмили Парк — масштабный современный поселок примерно на 400 домовладений с развитой внутренней инфраструктурой и атмосферой полноценного загородного клуба. Для жителей доступны: - благоустроенные парковые зоны - детский клуб - мини-зоопарк - ресторан - SPA-комплекс с бассейном - активные зоны отдыха - рядом расположен отельный комплекс Локация особенно привлекательна для любителей природы и активного образа жизни: рядом лесные массивы, Рузское водохранилище, маршруты для квадроциклов и снегоходов, рыбалка, охотничьи угодья, а также филиал Московского зоопарка. Юридические детали: Один собственник. Все документы готовы к сделке. С радостью организуем приватный показ в удобное для Вас время.






























































































